Work
Contact
Work
Contact
Lena lubosch
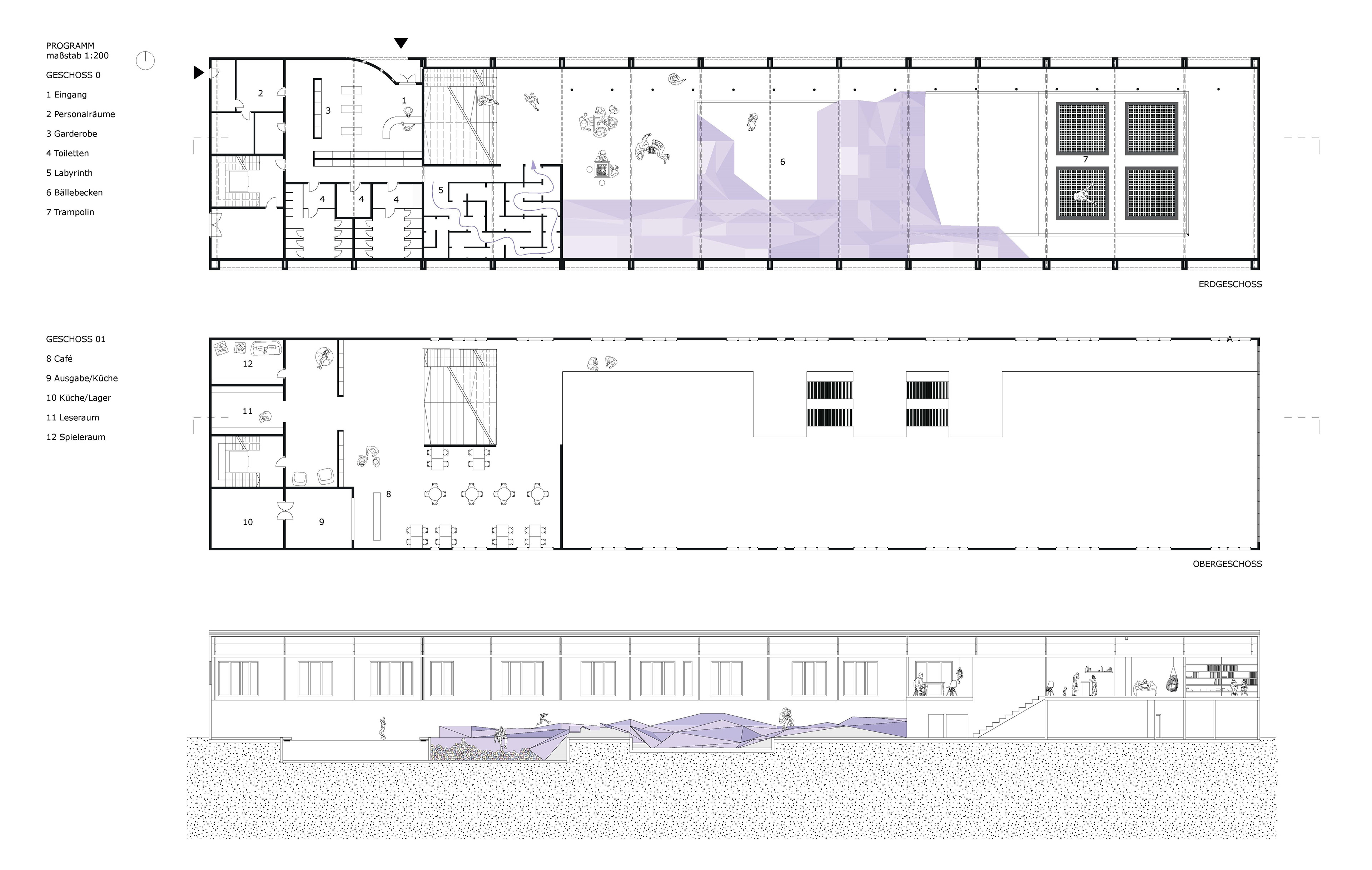
Bauen im Bestand: Südschwimmhalle Dessau
You may also like
Gebäude 42 Zeitz
2024
Bachelorthesis: Neugestaltung des Besuchereingangs
2024
International Student Center
2024
↑
Back to Top